



















































Tenure: Freehold
Tucked away in one of Willaston’s most desirable rural locations, this delightful cottage offers breathtaking countryside views, a generous plot of land, and endless possibilities. Seize the chance to make your dream of country living come true!
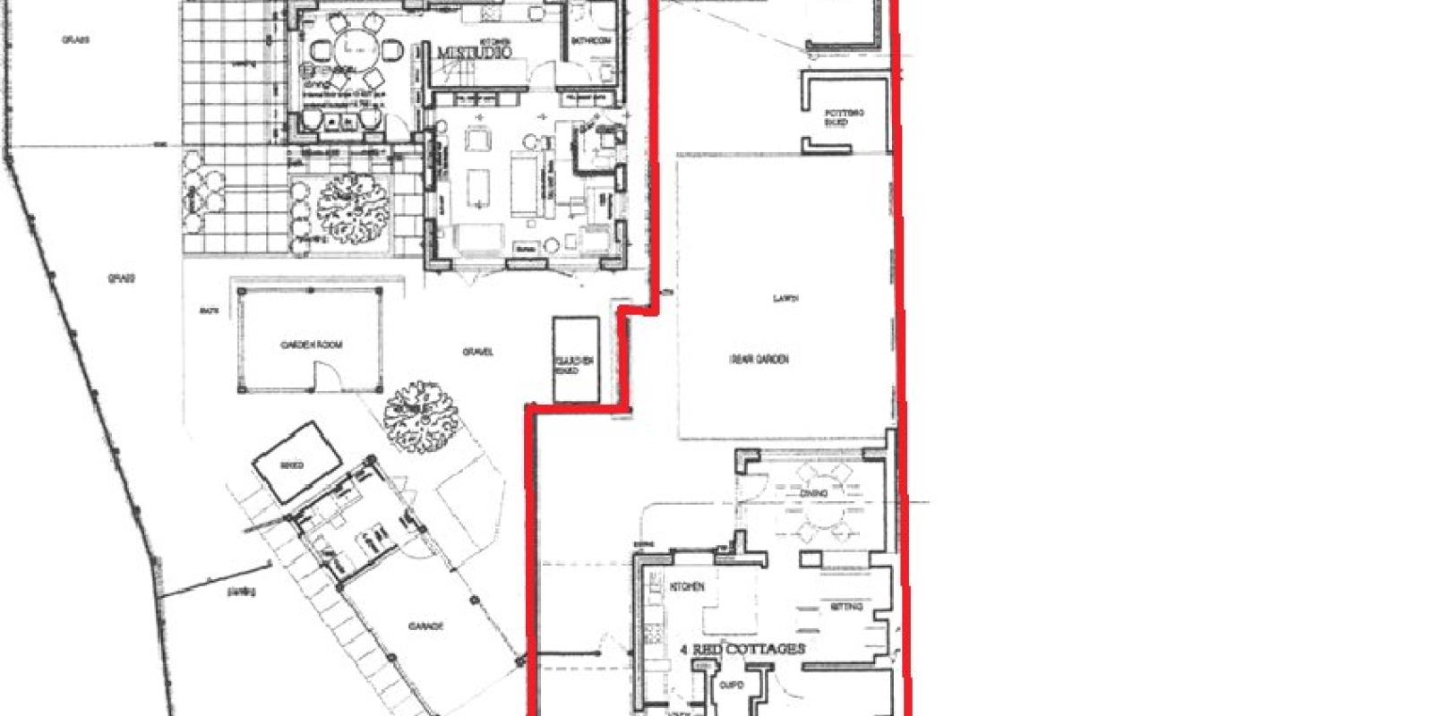
A rare find - this four bed semi detached family home sits on a lovely plot on Mill Lane. The property boasts unrivalled views overs fields to both the front and back.
The property briefly comprises; porch, entrance hall with WC access. There is also a cosy lounge boasting a log burner. From the lounge you access the open plan kitchen/diner with plenty of units and access to a utility room. Finishing the ground floor is another reception room boasting lovely views of the rear garden and fields.
Upstairs boasts four generously-sized bedrooms, providing ample space for family living or accommodating guests. The master bedroom has its own en suite and the bedroom on the top floor has its own en suite WC. From both the 1st and 2nd floors are fantastic views over the fields.
Set on a decent sized plot, the property is surrounded by stunning countryside views, offering a tranquil and scenic backdrop to everyday life. The outdoor space provides endless possibilities for gardening enthusiasts, outdoor entertaining, or simply enjoying the serene natural environment. Also in the rear garden is a home office.
A viewing is strongly recommended to fully appreciate the charm of this beautiful home. If you're searching for a spacious family home with character, this traditional semi-detached cottage is a unique gem.